杭州[切換]
24小時咨詢熱線
400-8800-618
當前位置 : 網站首頁 > 實景案例 > 時代濱江悅
時代濱江悅
更新時間:2022-06-13 00:00:00
案例分享
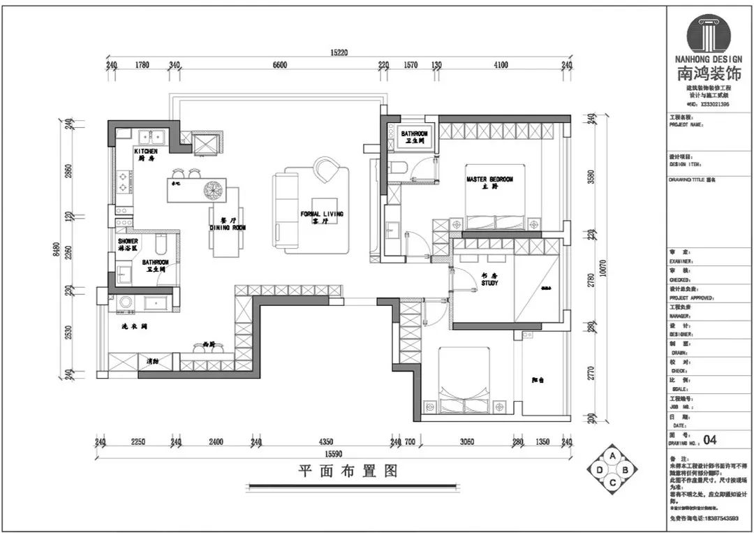
標準戶型圖
上一篇:中梁百悅城
下一篇:盛元慧谷
免費
免費申請戶型規劃
專屬設計師免費1對1全程服務
已經有3776人申請
24小時免費咨詢電話
裝修攻略
一門到頂柜子的坑,不要踩了才后悔
當定制家裝節遇上新零售內購,這波“潑天”福利,南鴻業主們穩穩接了!
第六屆杭州提振服務業高質量發展論壇隆重召開,南鴻裝飾董事長祝旭慷與會出席
140㎡意式輕奢:理想都會生活范本,以造型與結構書寫的靈動高級感!
南鴻裝飾11月全體設計師會議精彩解讀
107㎡意式輕奢:于沉靜中,喚醒品質生活的儀式感
熱裝樓盤
世茂·之西湖 | 簽約96戶 | 已完成81戶
溫馨人家 | 簽約95戶 | 已完成84戶
周一到周日 09:00-17:00
南鴻裝飾微信
浙ICP備05002926號-1 版權所有 浙江南鴻裝飾股份有限公司
浙公網安備 33010302000625號
在線咨詢
免費報價
預約量房
聯系我們
回到頂部
你家預算
108080元
咨詢熱線:400-8800-618
*為了您的權益,您的隱私將被嚴格保密