
浩澤園 | 光木為引,無限溫柔

項目信息
/
地址:伊薩卡浩澤園
城市:中國 杭州
戶型:三室兩廳
面積:125㎡
風格:現代簡約
設計施工:浙江南鴻裝飾
本案業主是一對30歲左右的夫妻,目前還沒有孩子。整體的裝修考慮是美觀結合實用,同時要重點把房子的景觀優勢給發揮出來。設計上以大面積的白+灰色鋪陳,清淺色調與柔和光線在居室內自然融合,輕松自在的氛圍讓人能深入品嘗到生活的美好滋味。

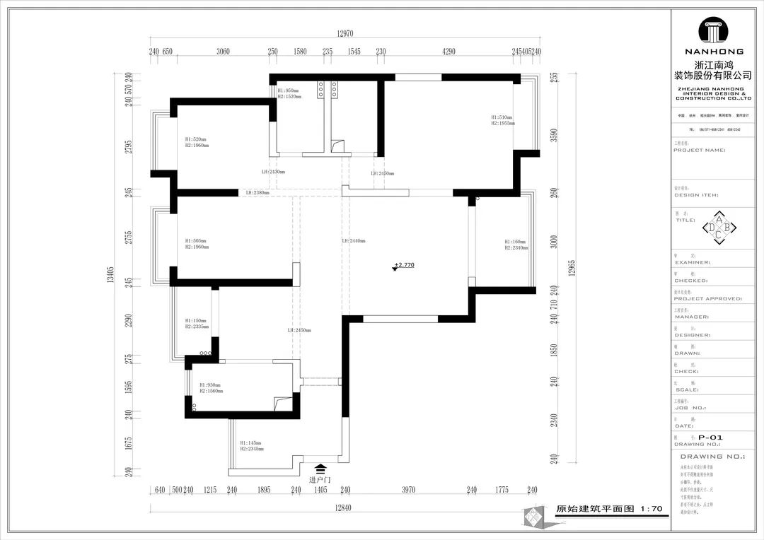
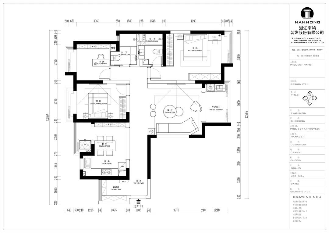
#戶型分析

優點:戶型南北通透,有一個很寬敞的客廳陽臺,視野開闊。
缺點:餐廳獨立空間偏小,過道狹長;主臥衛生間是暗衛而且面積小。

設計改動:
餐廚兩個獨立的空間合并在一起做成開放式,避免就餐的局促。
客廳與陽臺打通,讓視覺延伸出去,更好地發揮屋子的景觀優勢。
取部分書房空間擴充衛浴的面積,增強舒適體驗。
玄關
Hallway

原戶型天然擁有一個L型的玄關區,我們順勢做出這個鞋帽間來完善出入戶的體驗。玄關柜、換鞋凳、穿衣鏡,嚴絲合縫地為主人安排好出門、歸家的每一個流程。
過道
Corridor

沿著過道,家的清秀面貌被緩緩揭開。白與灰做極簡底色,溫潤木材與硬裝結構相融合,空間形態被通透順暢地舒展開來,衍生出對美好生活的無限想象。
客廳
Living Room


清爽大方的客廳空間,簡單組合的色彩,簡潔又有層次的立面裝飾,共同構建起現代風的高級感受。橫豎幾何線條的交織,塑造了空間有序規整的一面。



線條與塊面的自然結合創造舒適的視覺體驗,木材質增添了許多溫暖氣息,留白的手法也給予了家更多的想象空間。至于優越的風景,一扇大大的落地窗就足夠啦,再點綴清新的綠植,空間瞬間便凝結出夢幻的詩意美學。
餐廚空間
Dining Room & Kitchen


原始戶型中餐廳略顯局促,改造后與廚房融合,以開放格局之形,為居住者提供更開闊的活動空間。樸素的色彩打造安穩的就餐環境,設計省去所有刻意的裝飾,為空間增添了返璞歸真的高級美感。

廚房在打開后自然也變得更加通透敞亮,開放式設計同時滿足了對互動性的需求,在這樣舒適的環境中,每一天的下廚都讓人充滿了期待~
臥室
Bedroom


主臥擁有充沛的光線,空間因采用淡淡的粉色調而愈發地溫柔可親,在軟裝配置上也完全按主人自己的心意選擇,畫面足夠簡約愜意。

床頭靠飄窗的位置是女主人的化妝區,陽光仿佛也帶上了柔美的屬性,映照出居者內心的恬靜和安然。

次臥延續公區域的淺灰色調,展現著平靜而安穩的空間狀態。
書房
Study

承擔辦公、閱讀功能的書房同樣擁有著極佳的采光和視野,簡單的書桌椅、書柜配置,更有利于主人迅速集中精神、找到狀態。
衛生間
Bathroom

統一的灰色大理石墻地磚在空間中沉浸出無比舒緩的感受,墻面打造了壁龕,方便隨手取放物品。
免費
免費申請戶型規劃
專屬設計師免費1對1全程服務
已經有3782人申請
24小時免費咨詢電話
400-8800-618
你家預算
108080元