
南鴻裝飾10月全體設計師會議精彩概覽
10月14日下午,南鴻裝飾10月全體設計師會議在杭州瑞萊克斯大酒店舉行。
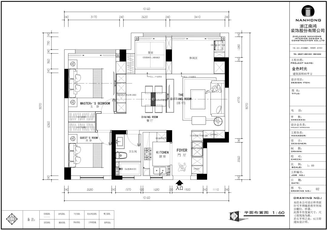
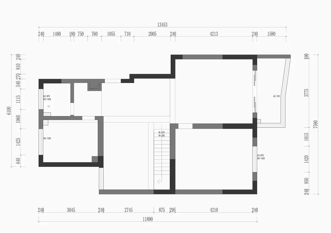
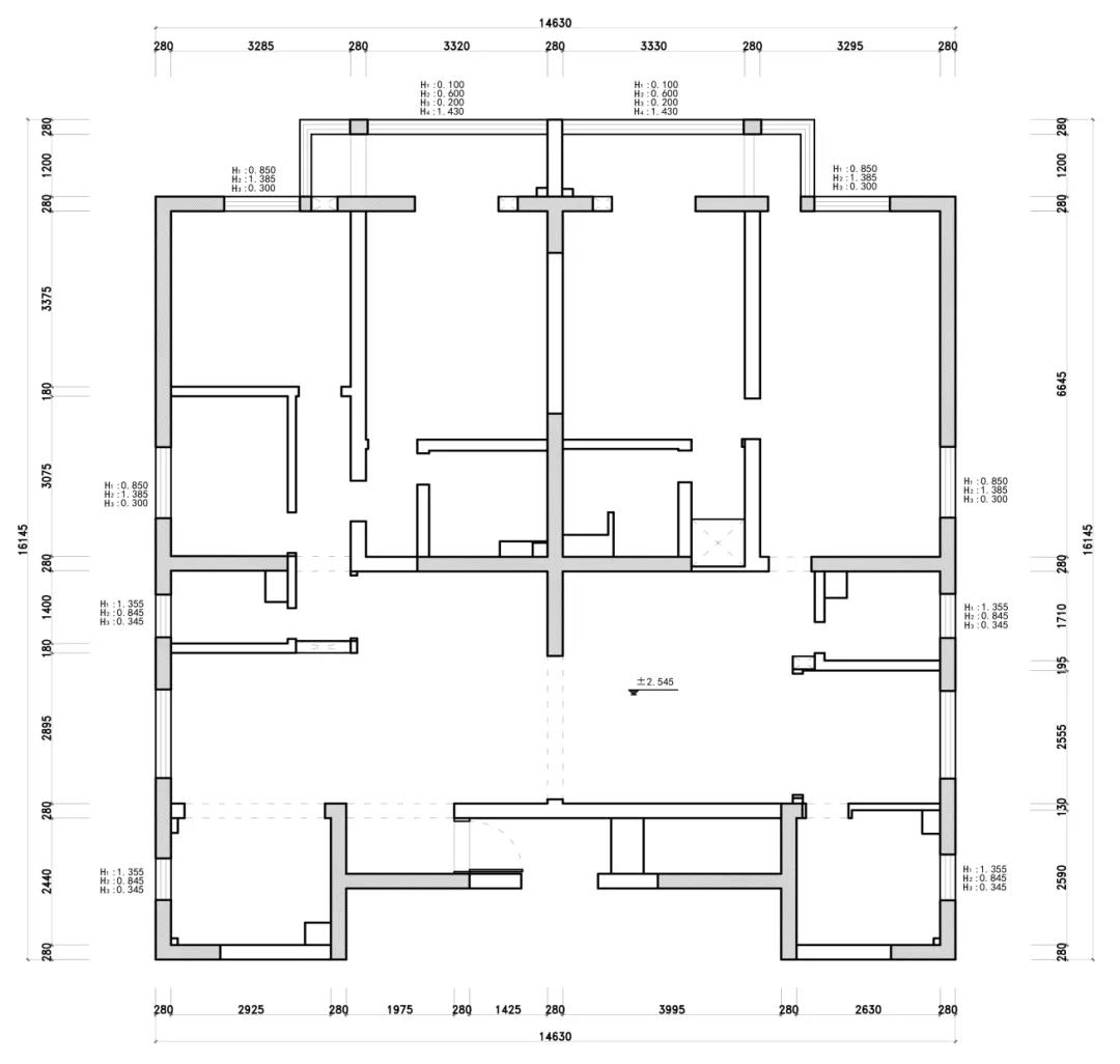
此次會議和以往稍有不同,除了有七位設計師的案例分享,還專業的風水知識講授,整場會議,干貨滿滿又生動有趣,快來了解一下。 設計師PK賽 1 MVP作品 設計一部/金色時光 此次設計師會議得分最高的作品是來自設計一部的金色時光案例。89㎡兩室兩廳的居室,業主是一位單身男性。在布局上設計師將公共區域打開,并植入了比較多的鏡面元素,盡量改善室內采光;增加了大量收納空間,保證室內的明亮簡潔;設計了地臺,滿足了業主對休閑感的要求。 戶型圖一覽▼ 實景欣賞▼ 這套作品業主非常滿意,設計師在設計時也十分用心,在布局上不僅擴展了空間,也為將來的戶型改動提供了更多的便利。戳上圖了解更多案例信息喲~ 臨平分部/遠洋湖映宸章 本案的風格選擇了現代風格,業主是一位單身女性小年輕,比較喜歡新潮、新鮮的事物,追求時尚感,考慮到家里有長輩居住,在儲物方面要求要多一點,另外業主對品牌的要求比較高。 戶型圖一覽▼ ▲原始戶型圖 ▲平面設計圖 效果圖一覽▼ 實景欣賞▼ 濱江分部/招商武林郡 本案是一套住宅公寓,三代同堂,業主希望有一套現代感的居所,家庭要有氛圍感,書房要開放式;整體要比較清爽,并且對環保比較看重。設計師對此從“環保”、“人文”、“藝術”三個方向進行設計,力求打造一個溫馨清新的家居環境。 戶型圖一覽▼ ▲原始戶型圖 ▲平面設計圖 效果圖一覽▼ 現場施工▼ 精裝部/都會森林 這個作品是一套143方精裝修的案例。設計師唐老師是根據與業主的深入溝通,幫助業主確定了自己所要的風格。并在精裝修的設計流程上唐老師有自己的理解,通過對南鴻自家軟裝的了解,根據現有軟裝制定設計方案,為精裝修設計方向提供了一條新的思路。 戶型圖一覽▼ ▲原始戶型圖 ▲平面設計圖 效果圖一覽▼ 精裝修的重點在于軟裝,唐老師從局改入手打造戶型,在成品家具、定制柜、背景墻、燈具、布藝等方面和諧搭配,統一整體步調,體現精致裝修風格。 富陽分部/山水國際 何老師帶來的作品是一套158㎡大平層戶型案例,風格是現代簡約。何老師為此項目設計了三套方案。業主有一兒一女,比較看重家庭,何老師三套方案的設計方向也是講究溫馨和美,塑造舒服的家庭氛圍。 戶型圖一覽▼ ▲原始戶型圖























▲平面設計圖
實景欣賞▼

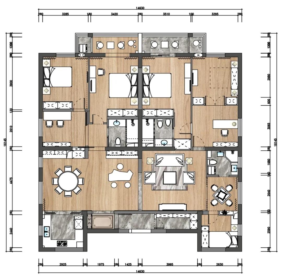
設計四部/水月苑

這一套作品被稱之為“風雅·輕奢”。業主是一位非常熱愛生活的小姐姐,有著自己獨特的審美愛好,房屋作為婚房裝修,后期父母偶爾來居住。保留三房功能,原戶型公共區域空間擁擠,想要空間敞亮開闊,色彩明亮。
戶型圖一覽▼

▲一層原始戶型圖

▲二層原始戶型圖

▲一層平面設計圖

▲二層平面設計圖
實景欣賞▼

城西分部/平海公寓

這是一套經典美式風格的案例。214方五室三廳的面積讓美式的奢華感得到了盡情的釋放。王老師從軟裝角度出發,運用木質家具和有藝術感的擺飾,打造出一個精致的居家環境。
戶型圖一覽▼

▲原始戶型圖

▲平面設計圖
實景欣賞▼

榮譽頒獎

▲陳總為業績優秀的設計師頒獎
分享環節結束,李總上臺發言。他表示每次設計師大會都是一次難得的經驗交流和個人成長機會,大家都能從中獲益。同時李總也強調了設計師們要提高意識,深入認識精裝和軟裝的差別,以應對當下行業的變化和客戶日益增長的個性化需求。

陳總則認為,設計師們需要保持不斷輸入的狀態,在精裝房越來越成為主流的當下,用知識來武裝和提升自己,并且不斷優化與客戶之間的溝通方式,優化裝修流程,形成南鴻標準。

會議最后,祝董上臺發表了總結講話。他強調,設計師在提升美商的同時,也需要不斷提升自身情商,在與客戶的溝通交流中更好的踐行“做裝修、交朋友”的南鴻核心理念。

免費
免費申請戶型規劃
專屬設計師免費1對1全程服務
已經有3782人申請
24小時免費咨詢電話
400-8800-618
你家預算
108080元