
南鴻裝飾8月全體設計師會議精彩概覽
12日下午,南鴻裝飾8月全體設計師會議于杭州瑞萊克斯大酒店順利召開。
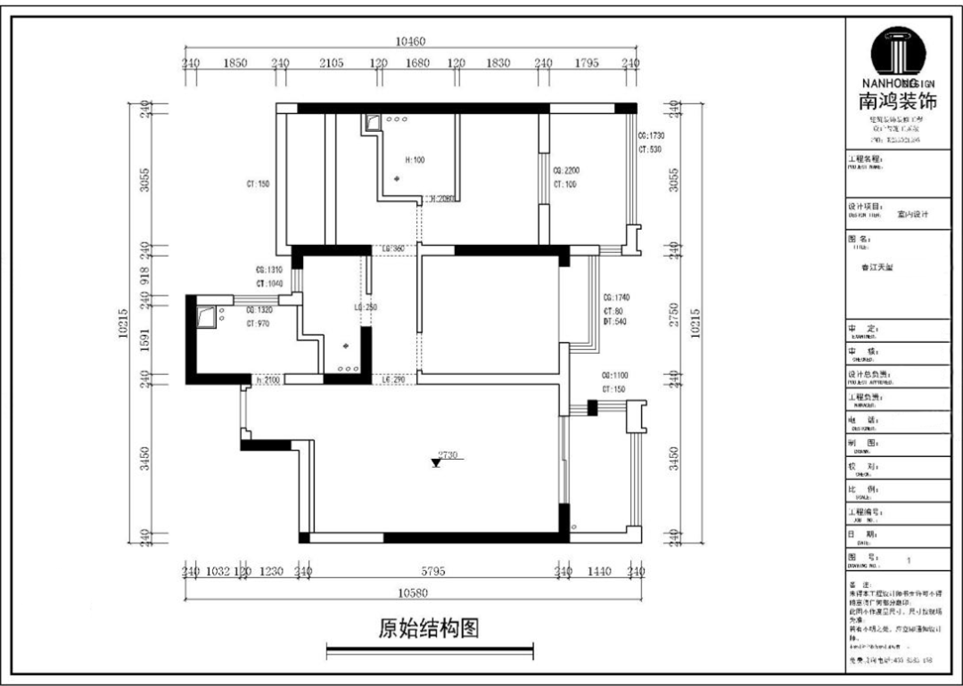
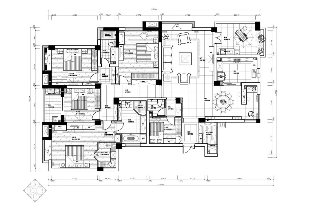
這次到會的小伙伴們都穿上了公司最新定制的統一“小橘衫”,bingbing閃亮登場!經小鴻親身認證,穿起來真的hin舒服~ 本次會議上,七位設計師帶來了他們的作品分享,還有兩大合作品牌商到場,精彩多多! ? MVP作品 設計一部莊建榮 / 龍湖春江天璽 本次PK賽最佳作品,是來自設計一部莊老師的龍湖天璽。89㎡偏復古文藝氣質的出色小戶型案例,全屋以暖色調烘托溫馨氛圍,局部使用深色跳色,軟裝家具、飾品也全部遵循配色原理,空間內混搭元素雖多,但絲毫不顯雜亂。 戶型圖一覽▼ 實景欣賞▼ 城西分部方祥榮 / 紫金西苑 本案為130方現代簡約風格的作品,業主夫妻二人均為浙大老師,屬于都市高知群體,對生活品質有著高要求。現代簡約風格注重實用,強調功能,家具線條流暢,色彩造型時尚,自然成為了他們的心中首選。 戶型圖一覽▼ 現場施工▼ 實景欣賞▼ 設計四部金羅丹 / 五幸家園 五幸家園是金老師之前經手的一套回遷房案例,三代同堂,前期與客戶交流方案的時候遇到了一些分歧,最終金老師通過耐心溝通獲得了他們的認可與信任,讓作品得到了圓滿的呈現。 實景欣賞▼ 富陽分部陳珊珊 / 如意春江 本案位于富陽一處風景秀麗的大型居住區,地理環境優越。在案例思路上,設計師希望以低調的灰色硬質架構搭配明亮的白色家具,再在軟裝上輔以米色系等跳色點綴,讓空間由內而外散發出動人的柔軟溫度。 戶型分析▼ ▲書房設計在負一層的采光井區域,這是屋主對地下室格局設計的唯一要求;棋牌室與書房打通,中設茶水室。 ▲超大的開放式餐廚區域,滿足屋主對通透格局的需求;樓梯改造是本案重點,原有笨重狹小的樓梯被打掉,取而代之是以懸空和異形疊加的方式,讓樓梯成為入戶的亮點所在。 ▲2樓面積最大視野最好的空間作為孩子的臥室;長輩房安排在兒童房隔壁,方便照顧孩子的成長。 效果圖一覽▼ 臨平分部曹云芳 / 水景城 曹老師分享了一套美式輕奢風格案例,明亮的色彩搭配讓人印象深刻。充滿愉悅感的藍色,被調制成五十度的低度色,用這樣的色彩來裝飾,容易給人以穩重、大氣又積極向上的感覺。 戶型圖一覽▼ 實景欣賞▼ 精裝部施文卓 / 蕭山國際公館 本案是新中式風格的作品,主題定在簡約樸素,在實用的基礎上加入一些底蘊深厚的新中式元素,力圖營造一個雅致的東方美學氛圍。 戶型圖一覽▼ 效果圖賞析▼ ▲典雅的客廳空間,色彩和諧,原木和硬包的運用,釋放出柔和氣息。 ▲藝術硬包沙發背景墻,山水的寓意比較美好。兩側加不銹鋼條,整個背景看上去有層次,有時尚感。 ▲餐廳的設計時尚大氣,餐邊柜象牙白的柜門提亮了整個空間。 ▲主臥用色沉穩,硬包背景組合木飾面,彰顯溫潤視感。 濱江分部蔣威 / 浙商大廈辦公區 本案為一套工裝案例,項目整體預算充足,格局寬敞,用材考究,地面通鋪大理石,上方輔以多層次燈光渲染,上下兩層氣派高級的辦公區域就此誕生! 實景賞析▼ 本次會議邀請到了南鴻兩大合作品牌商漢斯格雅與貝朗衛浴的吳總、陸總到現場為大家做了各自的品牌介紹與相關產品知識,軟裝部的同事則帶來了最新的展廳動向。 定制部的小伙伴還為大家細心解讀了西子銘苑這套優秀作品的誕生過程。這是一套比較完整的全屋定制,有整體櫥柜,浴室柜,全屋定制柜,房門,護墻還有硬包等,設計師們也借此對南鴻定制有了更深刻的認識。 △祝董為各業績優秀的設計師頒獎 會議的結尾,李總講話表示,南鴻作為深受廣大消費者認可和信賴的家裝領軍企業,口碑是立身的基礎。在今后的工作中要更加精準地定位客戶畫像,找準客戶需求并及時解決,把客戶滿意度牢牢擺在第一位。 祝董則再次強調了設計師的專業度問題,客戶對南鴻的信任基礎,不僅僅建立在工程質量之上,也在方案設計、產品采購、服務溝通等方方面面。









































免費
免費申請戶型規劃
專屬設計師免費1對1全程服務
已經有3782人申請
24小時免費咨詢電話
400-8800-618
你家預算
108080元